فلل سكنية
رمز 36
رمز 36
مباع
حي حطين, الرياض


مشروع فلل رمز 36 في حي حطين , يتكون المشروع من 9 فلل , تتميز الفلل بتركيب المكيفات كاملة على الفلة , بالاضافة الى المساحات الواسعة والتراس والبلكونة والسطح الخاص مع وجود غرف للسائق و الخادمة بالاضافة لكاميرات المراقبة .


نوصلك إلى الممتلكات المثالية الخاصة بك
نوصلك إلى الممتلكات المثالية الخاصة بك


9
مباني
9
وحدات
5051
المسطح الكلي
كاميرات مراقبة
تراس، بلكونة، سطح خاص
مكنسة مركزية
LED اضائة
غرفة خادمة
فلة ذكية بالكامل
مداخل و مخارج مكيفة
مكيف بالكامل

الموقع
بوليفارد الرياض

الجامعة العربية المفتوحة

الرياض بارك

مطار الملك خالد الدولي


5
دقائق
5
دقائق
10
دقائق
20
دقيقة
اختر ما يناسبك
اختر ما يناسبك

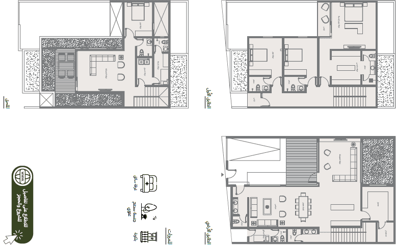
نموذج الفلة (01)
مباع
نموذج الفلة (01)
مباع
المميزات: مصعد، جلسة سطح علوي، غرفة سائق، زاوية على شارعين

نموذج الفلة (02)
مباع
نموذج الفلة (02)
مباع
المميزات: بلكونة، جلسة سطح علوي، غرفة سائق

نموذج الفلة (03)
مباع
نموذج الفلة (03)
مباع
المميزات: بلكونة، جلسة سطح علوي، غرفة سائق

نموذج الفلة (04)
مباع
نموذج الفلة (04)
مباع
المميزات: بلكونة، جلسة سطح علوي، غرفة سائق

نموذج الفلة (05)
مباع
نموذج الفلة (05)
مباع
المميزات: بلكونة، جلسة سطح علوي، غرفة سائق

نموذج الفلة (06)
مباع
نموذج الفلة (06)
مباع
المميزات: مصعد، جلسة سطح علوي، غرفة سائق، بلكونة

نموذج الفلة (07)
مباع
نموذج الفلة (07)
مباع
المميزات: مصعد، جلسة سطح علوي، غرفة سائق، بلكونة

نموذج الفلة (08)
مباع
نموذج الفلة (08)
مباع
المميزات: مصعد، جلسة سطح علوي، غرفة سائق، بلكونة

نموذج الفلة (09)
مباع
نموذج الفلة (09)
مباع
المميزات: مصعد، جلسة سطح علوي، غرفة سائق، بلكونة


ملتزمون بتسليم
مشاريع عالية الجودة
ملتزمون بتسليم
مشاريع عالية الجودة



