فلل سكنية
رمز 48
رمز 48
مباع
حي الريان, الرياض


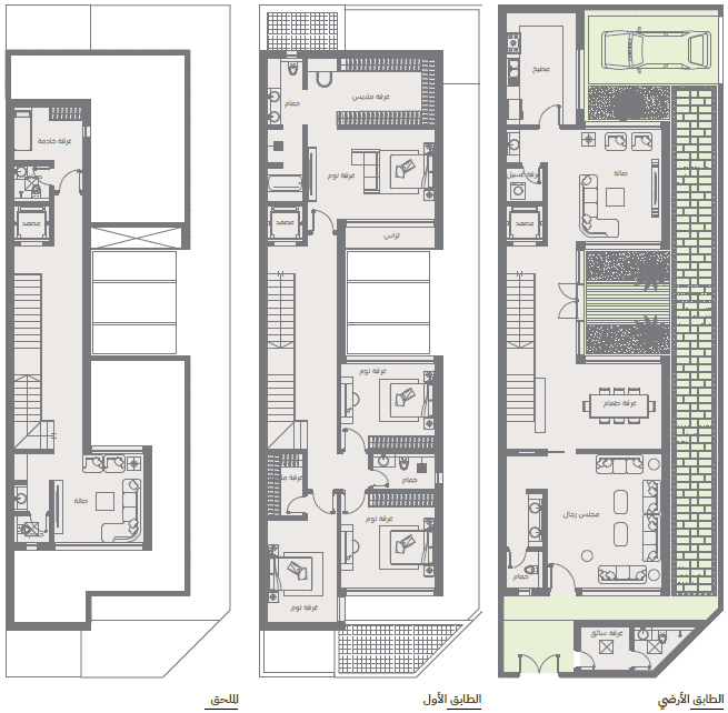
يأتي مشروع رمز 48 أحد مشاريع الرمز السكنية في حي الريّان، ويتضمن 18 فيلا سكنية، بمساحات واسعة وتصاميم متنوعة تضمن رحابة الإعمار، وتشمل العديد من المميزات؛ منها تراس، وسطح خاص، وشرفة، وغرفة خادمة، وكاميرات مراقبة.


نوصلك إلى الممتلكات المثالية الخاصة بك
نوصلك إلى الممتلكات المثالية الخاصة بك


18
مباني
18
وحدات
10324
المسطح الكلي
كاميرات مراقبة
تراس، بلكونة، سطح خاص
مكنسة مركزية
فله ذكيه
غرفة خادمة
LED اضائة

الموقع
وسط المدينة

جامعة الإمام محمد بن سعود

مطار الملك خالد الدولي


10
دقائق
15
دقيقة
30
دقيقة
اختر ما يناسبك
اختر ما يناسبك

نموذج الفلة (A)
مباع
نموذج الفلة (A)
مباع
المميزات: مصعد، جلسة سطح علوي، غرفة خادمة

نموذج الفلة (B)
مباع
نموذج الفلة (B)
مباع
المميزات: مصعد، غرفة خادمة


ملتزمون بتسليم
مشاريع عالية الجودة
ملتزمون بتسليم
مشاريع عالية الجودة



